这一创新概念融合了尖端技术和智能工程,其经过空气动力学优化的船体和上建明显降低了风阻,同时集成了一套风力辅助推进系统,进一步提高了燃料效率。最值得注意的是,新设计的货物储罐采用了奥钢联Grobblech GmbH公司的F460 TMCP toughcore®高强韧钢建造,在尺寸、强度和可持续性方面实现了新的突破。
近日,挪威领先的船舶设计公司Brevik Engineering披露全球最高效50000立方米低压液态二氧化碳(LCO2)运输船设计。
这一创新概念融合了尖端技术和智能工程,其经过空气动力学优化的船体和上建明显降低了风阻,同时集成了一套风力辅助推进系统,进一步提高了燃料效率。最值得注意的是,新设计的货物储罐采用了奥钢联Grobblech GmbH公司的F460 TMCP toughcore®高强韧钢建造,在尺寸、强度和可持续性方面实现了新的突破。
该船专为低排放航行设计,并针对低速航行进行了优化,为高能效的二氧化碳运输树立了全新标杆。
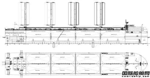
新船设计可在零下55摄氏度运输50000立方米液态二氧化碳,在船体内配备了8个圆柱形储罐,这得益于使用了F460 TMCP toughcore®钢,一种具有卓越断裂韧性、适用于低温环境的高强度热机械轧制钢材。
Brevik Engineering公司高级首席工程师Gisle Nysaeter介绍:“通过利用新开发的F460 TMCP toughcore®出色的材料特性——高强度与优异韧性的结合——我们得以将储罐直径最大化至15.8米,并且优化设计以适应8.5巴的低压运营。奥钢联Grobblech公司的材料是我们发现的低压二氧化碳应用中最具成本效益的替代品。”
F460 TMCP toughcore®在设计时考虑了低温挑战,能建造尺寸更大和重量更轻的低压储罐,这一优势可直接转化为更低的运营成本和更高的船舶性能。
奥钢联Grobblech GmbH公司销售经理Myriam Cejudo表示:“这种特殊的船舶设计结合了现有的最现代技术,使其成为市场上最高效的低压LCO2运输船设计。选择F460 TMCP toughcore®,充分体现了其对设计方和船厂的明显优势,凭借其增强的抗拉伸强度和出色的低温性能,这种材料能设计和建造市场上最大的低压LCO2货物储罐。我们很自豪能与Brevik Engineering合作。”
该钢材已经通过CVN零下85摄氏度和CTOD零下55摄氏度设计温度下的严格测试,具有出色的安全裕度。同样重要的是,市场上可轻易获得匹配的焊接材料,确保制造工艺顺畅。
Brevik Engineering公司和奥钢联Grobblech公司的合作凸显了先进的船舶设计、下一代推进和创新材料如何在不影响性能、安全性或可持续性的情况下,协同推动碳捕集与运输产业的发展。